Basics
- Bedrooms: 3
- Bathrooms: 2
- Location: Whakatane
- Date added: Added 2 months ago
Description
-
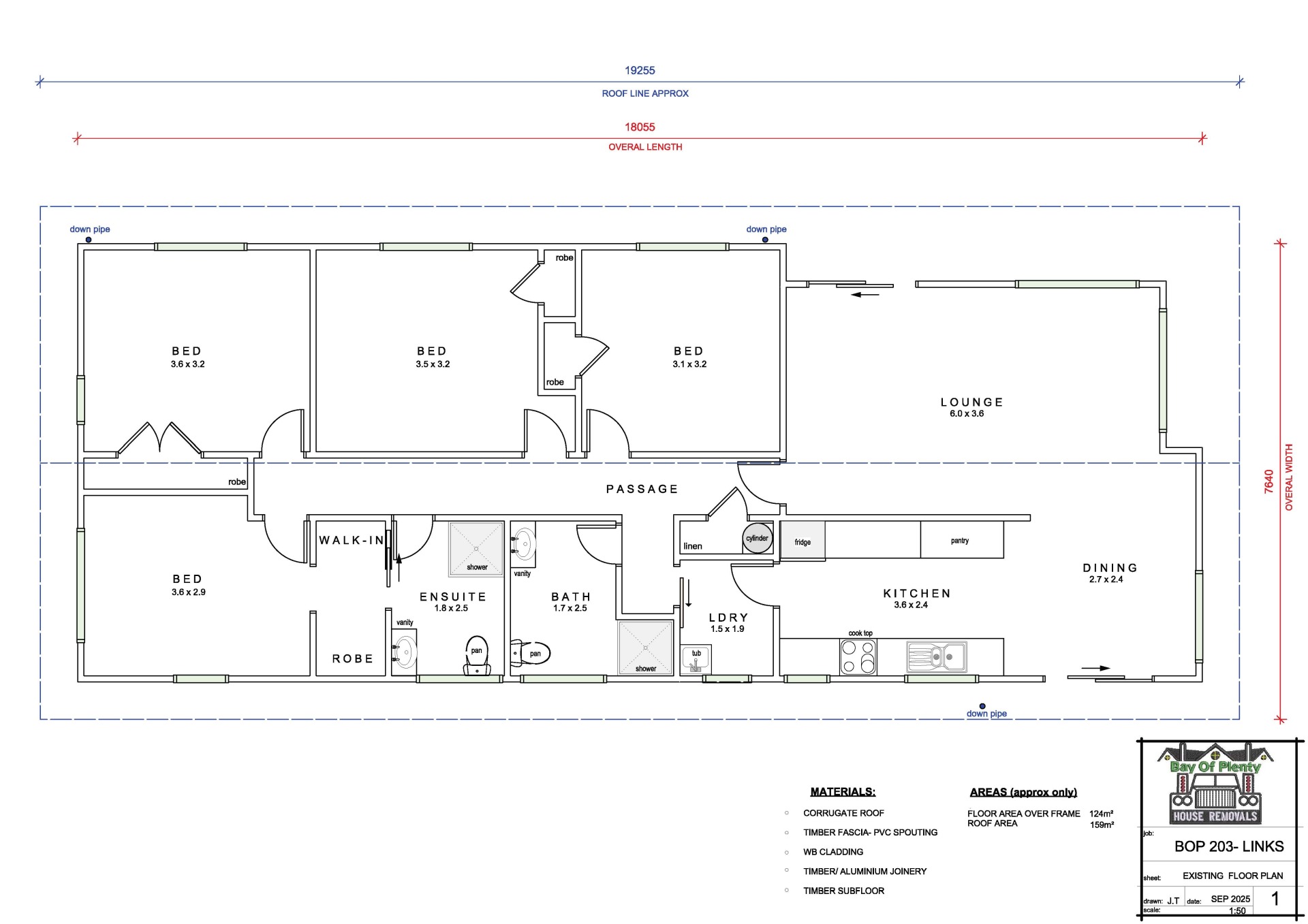
Description:
- FOR SALE AND READY FOR VIEWING BY APPOINTMENT - still in renovation stage
- fully renovated interior walls and ceilings stopped and skimmed ready for painting.decorating
- new finishing lines-scotia & skirtings
- roof was new approx 7 years ago
- insulated walls
- electrical work done/double power points
- new kitchen to be installed
- 15 metres long by 7m wide
- 4 bedrooms 2 bathrooms ( master with a walk through wardobe to ensuite)
- separate laundry
- open plan living
- new gas infinity
- priced at $190,000 inc GST, on road insurance, delivery within 100km and standard timber foundations.
Powered by Estatik
