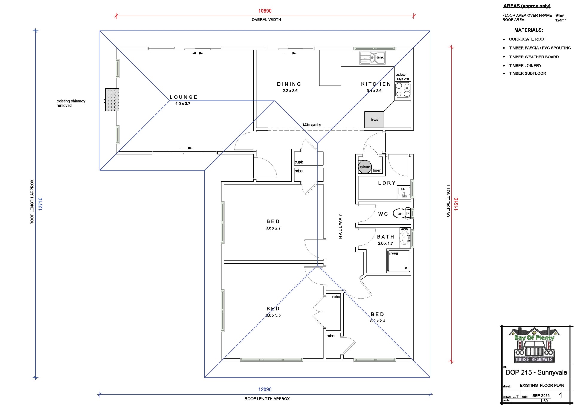
Basics
- Bedrooms: 3
- Bathrooms: 1
- Location: Whakatane
- Date added: Added 5 months ago
Description
-
Description:
This is a 2 piece 3 bedroom home with lovely native timber dark wooden flooring.
This will come with a window/ranch slider installed in the lounge wall and re-clad on the back side of the lounge where it was attached to a garage.
has 3 bedrooms, separate laundry, cosy feel, a solid native timber home needing a few adjustments and TLC
Priced at $95,000 inc GST, delivery within 100km of Whakatane, 2 piece move re-joined on site, on road insurance and standard timber foundations - conditions apply.
