




Available for viewing at our 39 Mill Rd, Whakatane yard.
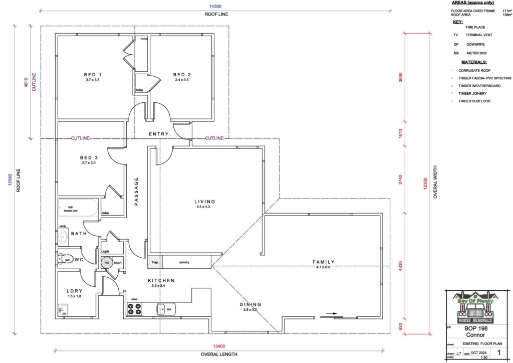
This native timber approx 110sq metre 3 bedroom weatherboard home has external appeal with it’s shape and roofline to give it character.
Native timber floors in the main lounge and bedrooms. 2 living spaces are a bonus.
Some of the work has already been done for you, a few exterior weatherboards replaced and repairs have been done and currently having a tidy up on the inside to get someone started.
Priced at $95,000 inc GST, on road insurance, delivery within 100km of our 39 Mill Rd, Whakatane yard and standard timber foundations.


